Хорошёвское ш, д 39, Москва
Путь
- Общее
- Коммерческие условия
| Класс | A |
| Тип здания | Офисная недвижимость |
| Общая площадь | 41000 м2 |
| Этажность | 25 |
| Кондиционирование | Центральное |
| Система пожаротушения | Спринклерная |
| Вентиляция | Приточно-вытяжная |
| Провайдер | коммерческий |
| Видеонаблюдение и Охрана | есть |
| Операционные платежи |
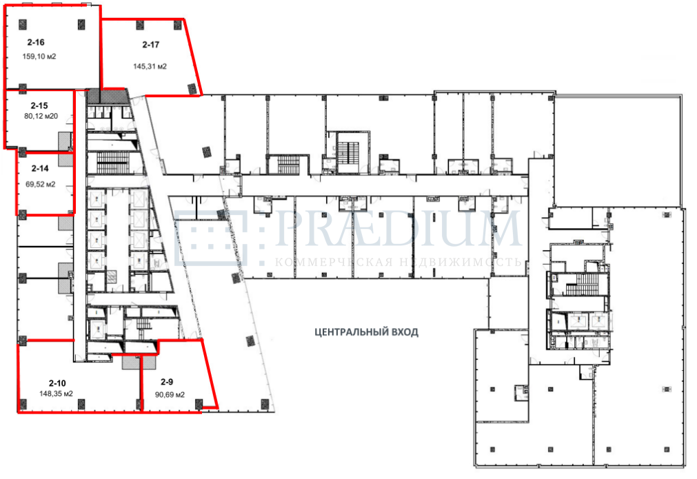
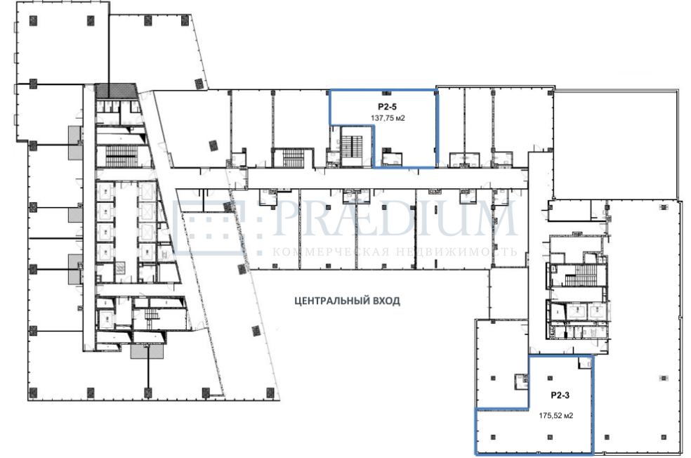
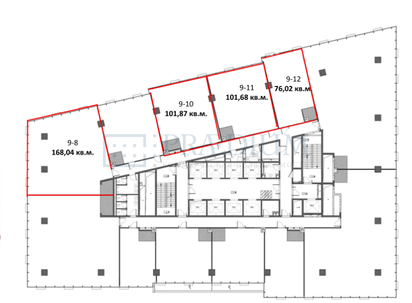
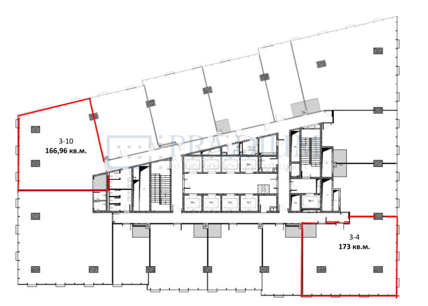
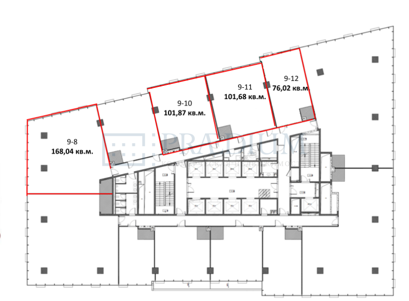
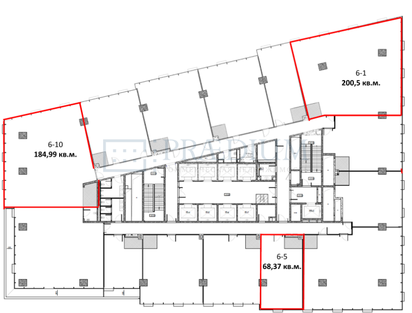
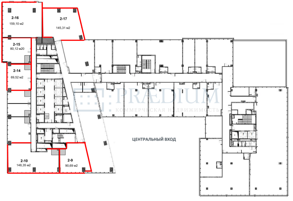
Продажа торговых помещений
Этаж
Метраж
Стоимостьв месяц
Цена за м2
Назначение
Фотоблока
1
83.00
87 150 000 р.
1 050 000 р.
-
Характеристики
| Состояние | Без отделки |
| Назначение | магазин |
1
79.90
83 895 000 р.
1 050 000 р.
-
Характеристики
| Состояние | Без отделки |
| Назначение | магазин |
1
53.90
61 985 000 р.
1 150 000 р.
-
Характеристики
| Состояние | Без отделки |
| Назначение | магазин |
1
38.90
48 625 000 р.
1 250 000 р.
-
Характеристики
| Состояние | Без отделки |
| Назначение | магазин |
Описание
Описание: Общая площадь здания составляет 41 000 м², из которых 30 000 м² отведены под высококлассные офисные помещения.
Инфраструктура дополнена 2 000 м² ритейла и кафе, 1 500 м² открытых террас и благоустроенной парковой зоной площадью 2 000 м².
интересует помещение?
Заполните заявку или позвоните по телефону +7 (495) 228-23-23 и консультанты ответят на ваши вопросы и назначат просмотр
Согласен на обработку персональных данных
По дополнительным вопросам и организации просмотров, пожалуйста, обращайтесь к консультанту
по объекту: +7 (495) 288 23 23



















