- Главная
- Каталог недвижимости
- Офисная недвижимость
- Офисная недвижимость STONE Римская, башня R2
Золоторожский Вал ул, д 11 стр 33, Москва
Путь
- Общее
- Коммерческие условия
| Класс | A |
| Тип здания | Офисная недвижимость |
| Общая площадь | 35000 м2 |
| Этажность | 23 |
| Кондиционирование | Центральное |
| Система пожаротушения | Спринклерная |
| Вентиляция | Приточно-вытяжная |
| Провайдер | коммерческий |
| Видеонаблюдение и Охрана | есть |
| Операционные платежи |
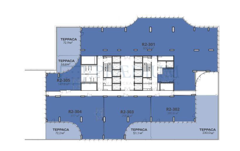
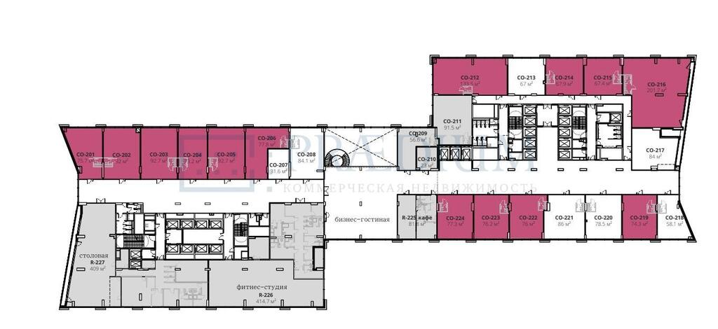
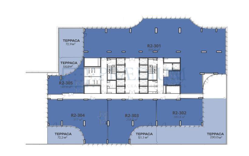
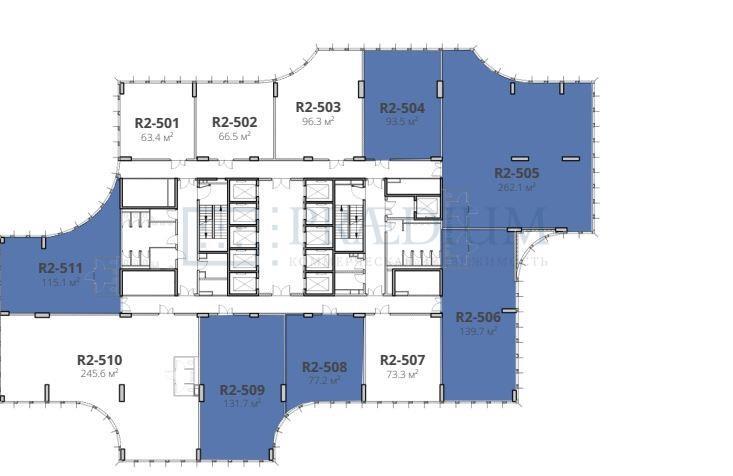
Продажа торговых помещений
Этаж
Метраж
Стоимостьв месяц
Цена за м2
Назначение
Фотоблока
Описание
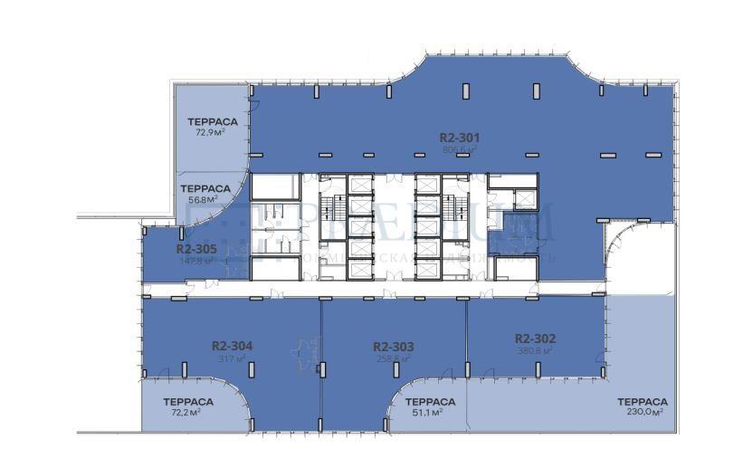
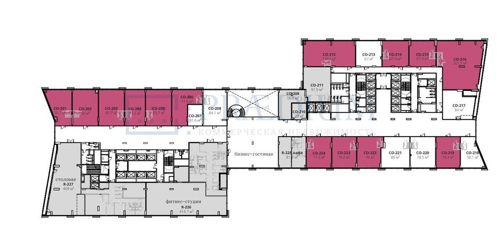
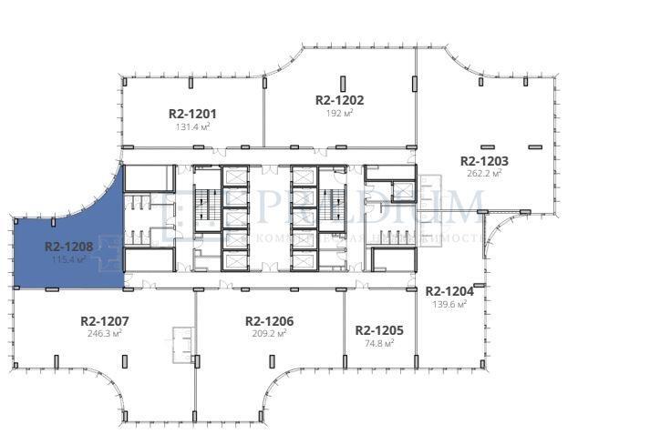
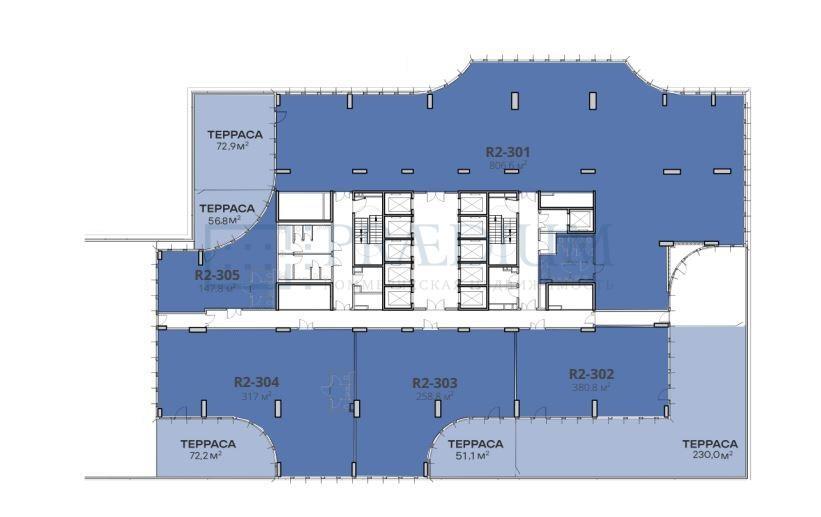
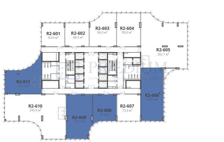
Описание: STONE Римская состоит из двух башен R1 и R2, 18 и 23 этажностью.
Общая наземная площадь бизнес-центра - 70 500 кв.м.
Общая площадь офисных помещений - 49 500 кв.м.
Общая площадь инфраструктуры - 5 500 кв.м.
интересует помещение?
Заполните заявку или позвоните по телефону +7 (495) 228-23-23 и консультанты ответят на ваши вопросы и назначат просмотр
Согласен на обработку персональных данных
По дополнительным вопросам и организации просмотров, пожалуйста, обращайтесь к консультанту
по объекту: +7 (495) 288 23 23





















